Building A2
Project Description
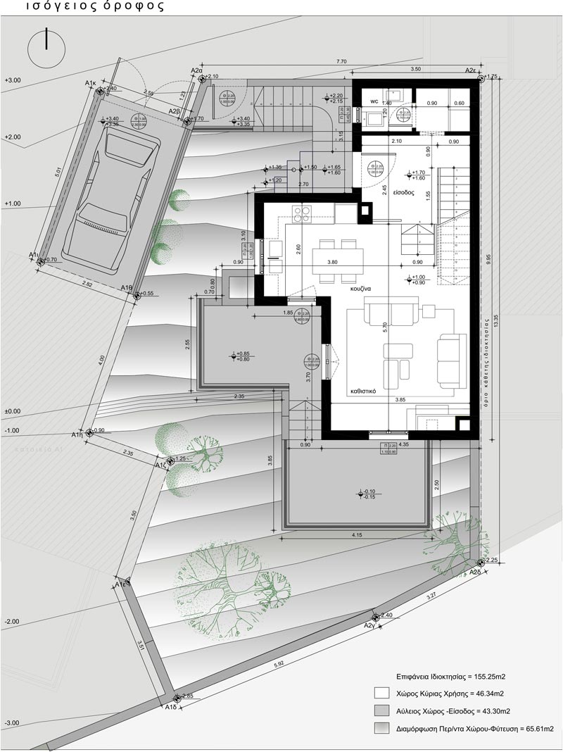
The residence is a two-story building with a traditional stone roof and basement. It faces south and offers a unique view of the Pagasetic Gulf. On the ground floor, the open-plan living-dining room opens onto an outdoor terrace with direct access to the surrounding area and a view of the sea, while the entrance hall, toilet, and internal staircase are located on a raised level. The main staircase connects the first floor, with its traditional wooden beams, which includes two large bedrooms, the main bathroom, and the balconies, with the raised basement, which has general-purpose rooms and an auxiliary toilet. The surrounding area, one of the largest in the settlement, is designed to allow easy access from the private parking area to the main entrance and the garden of the residence.
Building Features
- Total building area: 138.87 m
- Ground floor: 46.34 sq m
- First floor: 46.19 sq m
- Basement: 46.34 sq m
- Building site: 155.25 sq m
- Parking space: One





